KS Apartment,

completed

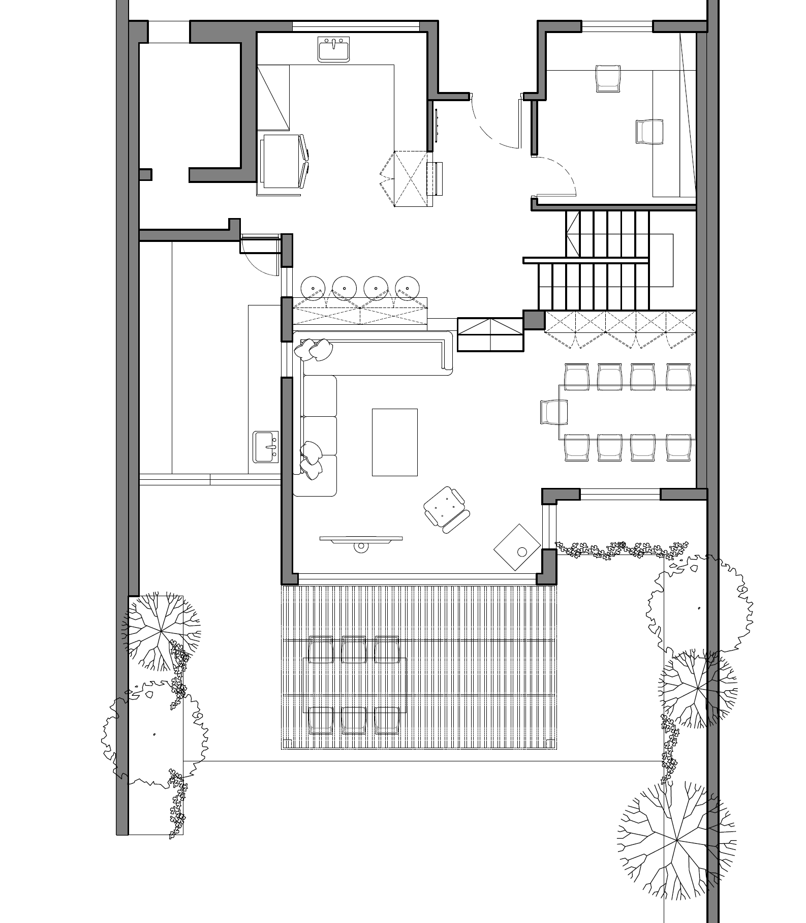
A 25 yo duplex house in the outskirts of Kfar Saba, belonging to a lovely family of four. The couple and their two teenage sons have been living there for 10 years before finally taking the plunge and deciding to renovate the space to suit their needs.

Our work consisted of removing all the old flooring and fixtures on the downstairs floor, replacing them with a fresh modern kitchen, new floors and windows and custom carpentry. The garden area was treated as well, by changing the old pergola and replacing the flooring.

After assigning new functionality to unused areas, what previously was a dark and nonfunctional space, was reborn as a light and inviting common area, that has a clear and designated place for all needed activities, for every family member.

Images by studioMARMITA

Next
Next

FV Apartment